Search

Leave a Message

By providing your contact information to McCoy | Obermueller & Associates, your personal information will be processed in accordance with McCoy | Obermueller & Associates's Privacy Policy. By checking the box(es) below, you consent to receive communications regarding your real estate inquiries and related marketing and promotional updates in the manner selected by you. For SMS text messages, message frequency varies. Message and data rates may apply. You may opt out of receiving further communications from McCoy | Obermueller & Associates at any time. To opt out of receiving SMS text messages, reply STOP to unsubscribe.

Thank you for your message. We will be in touch with you shortly.

Explore Properties
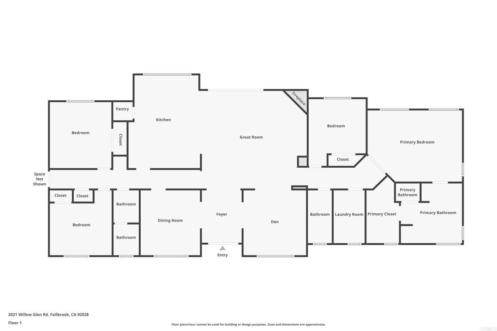
2021 Willow Glen Road
explore in 3d

Property Description

Welcome to your serene escape in the hills. This well-maintained 4-bedroom, 3-bathroom home offers privacy, quiet, and breathtaking views of rolling hills. Tucked away in a peaceful canyon, the setting is tranquil, with the soft sounds of nature. Rainbow Creek flows year-round through the property, creating a calming space for meditation and exploration. Just a short walk down Willow Glen leads to the Rainbow Creek trailhead, connecting you to the scenic Santa Margarita River trail system, ideal for hiking and outdoor adventure. The property is a birdwatcher's haven, with daily visits from hawks, owls, hummingbirds, roadrunners, woodpeckers, orioles, goldfinches, and more. Over 15 varieties of fruit trees and vibrant native plants bring seasonal color and constant bloom. Enjoy fresh farm to table style meals from your raised garden boxes, or indulge in your own homemade pomegranate jelly. Sunsets from the expanded rear patio are spectacular, and the evenings are filled with the warm glow of sunsets and soft songs of frogs and crickets. Enjoy the open great room with vaulted ceilings and a welcoming fireplace, an easy room to entertain in, adjacent to the formal dining room, while the den allows a more intimate setting to unwind. The primary suite has a beautiful private ensuite and a walk-in closet with ample space. In addition to the attached 3-car garage, there is a detached 14x26 workshop with 40-amp 240V power, and covered RV parking (12x26). The backyard features an enlarged patio with a stylish metal-frame shade structure. To power this energy-efficient home, with its many smart features, is the owned solar system with 14 panels. The kitchen has been upgraded with smart appliances, and the upgraded luxury vinyl plank flooring adds a fresh, modern feel. A whole house fan keeps things cool, while retractable patio shades and roller sun shades provide seasonal comfort. Smart features include app-controlled lighting, appliances, thermostat. This is more than a home, it's a lifestyle rooted in nature, peace, and efficiency.

Overview

Property Status
Sold
Lot Size
3.24 Acres
MLS ID
NDP2504566
Property Type
Residential
Year Built
2006

Features & Amenities

View Description
Canyon, Hills, Panoramic, Valley
Stories
1
Garage Spaces
3.0
Pool
None
Lot Features
Sloped Down, Garden, Gentle Sloping, Sprinkler System, Sloped Up
Air Conditioning
Central Air
Laundry Room
Laundry Room
Fireplace
Living Room
Other Interior Features
Bedroom on Main Level, Entrance Foyer, Main Level Primary, Primary Suite, Walk-In Closet(s)
Sewer
Septic Tank
School District
Fallbrook Union
Sales Price
$1,150,000
Zoning
R-1

Downloads

2021 Willow Glen Road

Schedule a Tour

We would love to help you see this beautiful home! As a full-service brokerage, we can help you tour. Please submit an offer, and answer questions about the buying process.

Thank you

for your interest in 2021 Willow Glen Road, Fallbrook, CA 92028

2021 Willow Glen Road
Navigate

I'm Interested In

2021 Willow Glen Road

or Contact

Latest Listings

Featured Properties

  • 4235 Harrison Street For Sale

    $2,700,000

    4235 Harrison Street, Carlsbad, CA 92008

    • 3 Beds
    • 3 Baths
    • 2,539 Sq.Ft.
  • 4216 Bridlewood Road For Sale

    $2,699,000

    4216 Bridlewood Road, Fallbrook, CA 92028

    • 6 Beds
    • 7 Baths
    • 5,390 Sq.Ft.
  • 9 Country Glen Road For Sale

    $2,225,000

    9 Country Glen Road, Fallbrook, CA 92028

    • 3 Beds
    • 3 Baths
    • 3,577 Sq.Ft.
  • 2869 Dos Lomas Place Pending

    $1,575,000

    2869 Dos Lomas Place, Fallbrook, CA 92028

    • 4 Beds
    • 3 Baths
    • 3,028 Sq.Ft.
View All

Follow Us On Instagram